Worcester 240 combi rsf. Also covers volt free contacts and why mains voltage must not be connected to some boiler terminals.
Worcester Combi Boiler Manual 28i
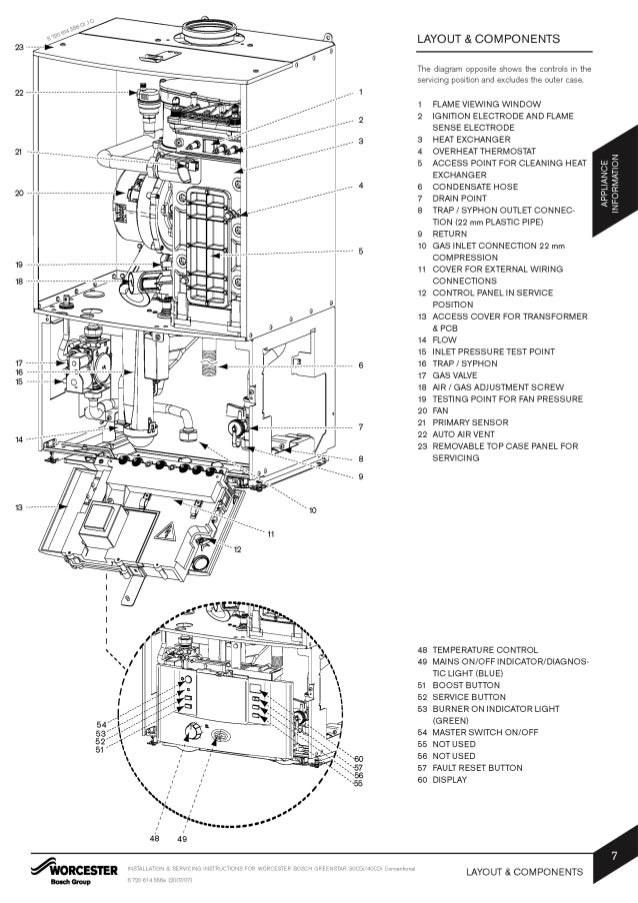
Worcester combi boiler wiring diagram. Combination boilers and connecting thermostats to them including hive and nest. Just click on the model or the gas council number and the manual will download at the bottom of the page. Usually the sl to the boiler from the zone valve oranges terminates into terminal 4 at the boiler. We have put together a simple video which will showcase how to connect both worcester and third party controls with our greenstar gas boilers. Have used it to install hive heating on a wb greenstar 24i junior combi boiler this is fitted with a dt20 twin channel programmer. Central heating boilers combi boilers gas boilers oil boilers gas central heating heating engineers boiler installation boiler repair notice expand the safety and well being of our customers and colleagues is always our number one priority even more so now with the ever changing progression of the coronavirus outbreak.
Our combi boilers are compatible with all fuel types gas oil and lpg and come with up to a 10 year guarantee. After you have downloaded the manual double click on the download for the manual to open if you want to save the download right click. Ive dug up the wiring instructions from the combi manual. Chapters 102 greenstar cdi classic combi system. Combination combi boilers are the most popular type of boiler in the uk due to their smaller size and being more economical than other boiler types. Hot water is working fine set to on however when i call for heat the boiler does not fire up.
Ive picked up a honeywell cmt927 programmable thermostat and im attempting to wire it up to a worcester bosch 24i junior combi boiler. And here is the wiring instructions from the thermostat manual. Worcester boiler manuals listed below are all the manuals for worcester. 6 8 wiring key orange grey b brown o g wiring schematic a some earths neutrals omitted for clarity 1 2 3 4 5 6 7 8 9 10 combi boiler time clock 0000 l n sl si. Thanks very much for posting the diagram. As it is a combi no additional controls for hot water will be needed as the combi deals with that on demand double channel clock 2 roomstats for the heating zones the diagrams in the stickies will show you the connections required.
Having a bit of a quandary.


















