Support categories all brochures instructions and wiring diagrams pdf. View and download videx 3000 series technical manual online.
875f Videx Wiring Diagram Wiring Resources
Videx wiring diagram. On the wiring diagram in the gsm instructions it indicates a volt free contact exiting the unit figure 26 or 14v figure 25 if keypad used as standalone where should either of these be connected on the e2 in order to make the gates cycle. Marketing brochures for the extensive range of products available from videx. Technical manuals offering installation directions wiring diagrams and troubleshooting advice. How to guides to assist in the operation and integration of our systems. 4810n series gsm intercom. Audio door entry systems.
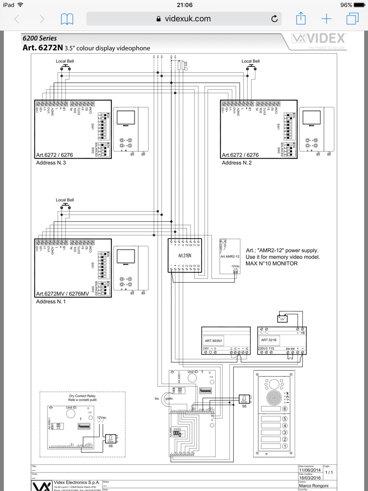
Videx 836m series audio wiring diagram 1 x entrance 836m1 849 proximity 1 x phone 3011 321 ac psu videx vx 800 wiring diagram videx vx810wd connection guide. The wiring diagram towards the back of this manual should be followed carefully. Heavy duty conductors on wiring diagrams are shown heavily outlined. Page 5 technical manual manuale tecnico door phone systems citofonico wiring diagrams schemario. Videx video coax system 1 entrance n button panel 8372 845 830 calling n monitors 901. Videx run free training courses for engineers who are not familiar with the videx product range.
3000 series intercom system pdf manual download. Videx 831k series video wiring diagram 1 x entrance 1 x video phone 850k ac psu with smvk panel option videx video smart kit system 2 entrance 2 button 331k 2 panels calling 2 monitors 3351 or 3451. Wiring diagrams for videx 4000 series audio intercom includes 4k1 4k2 4k3 4k4 4k5 4k6 4k7 4k8 4k9 4k10 4k11 4k12 4k1s 4k2s 4k3s 4k4s 4k5s 4k6s 4k7s 4k8s 4k9s 4k10s 4k11s 4k12s. I have purchased a gsm4kc to work my currently fob operated e2 controlled gates. Technical manuals including wiring diagrams and connection details. 4810n series gsm intercom firmware version 102 108.
Technical help is also available on 0191 224 3174 during office hours or via e mail. Join our mailing list to stay up to date with videx activities and the very latest in security information. 3121 3101 3151 3111 3102 3131 3112 3141 3113 3123 3114 3124 3125 3126 3117. See all application notes. Videx diagram video 4000 series 1 entrance 4283 panel 2200 series 6 wire calling n x 3676 v videx sentry system manual videx 507 call tone generator wiring diagram.















