You will need to become familiar with it in order to get the most value from using the system. Drive thru headset systems timers repairs by hme.
Pc30a Software Hme
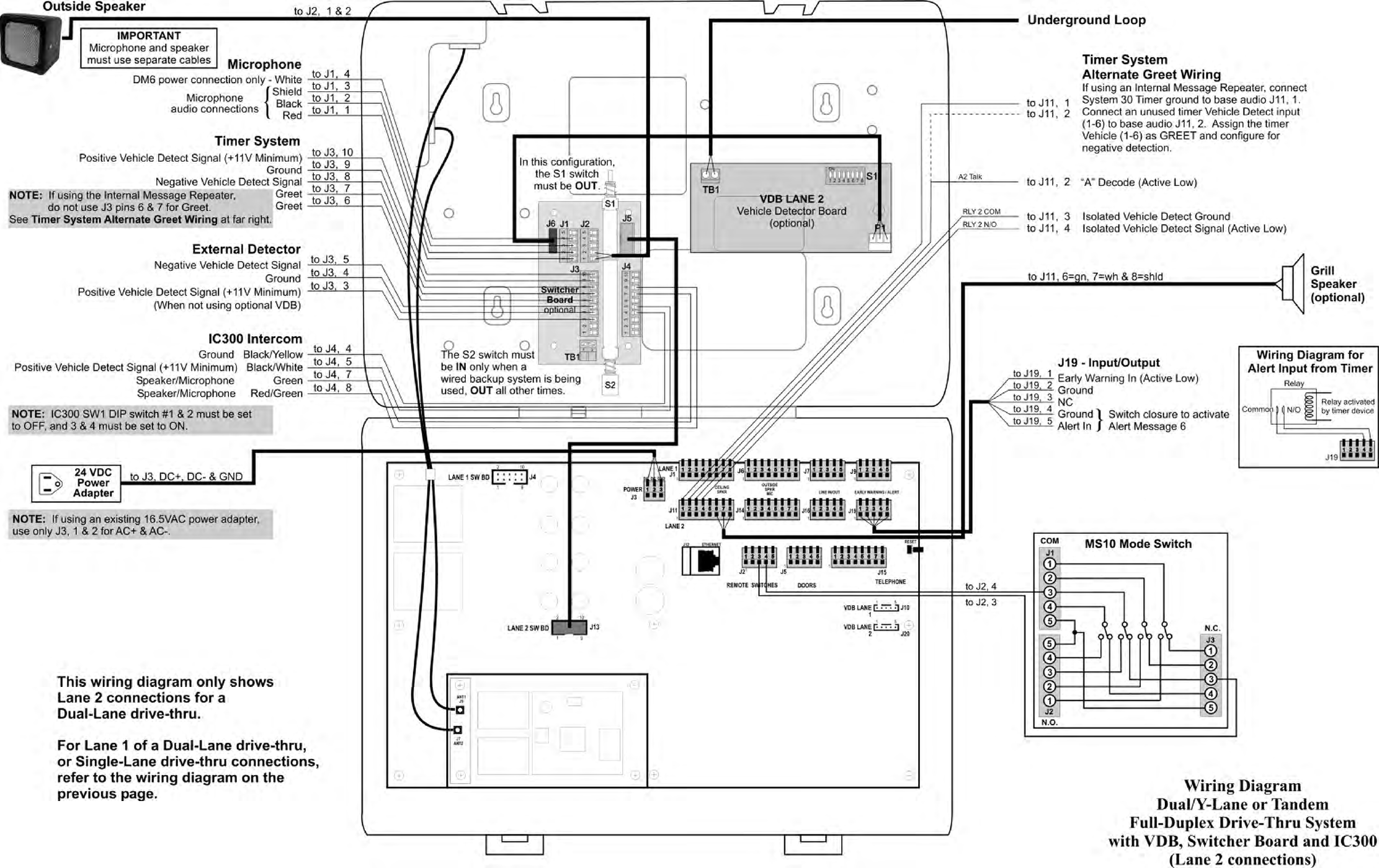
Hme system 30 timer wiring diagram. This hme end user license agreement eula is a legal agreement between you either an individual or a single. Control unit the control unit is the electronic heart and brain of the system 30 timer system. Clear com digital matrix ip and wireless intercom systems. Equipment identification and features a. Hard fault in a circuit occurs when the terminals of a compo nent become stuck open or b shows the time diagram of the output signal taken in one of the recorded as a conse quence we wont be able to implement hme. Green or bare copper wire in wall box to green terminal screw.
The r31s is the standard remote display unit but you may have any of the units described below. Main features of the system 30 control unit ii. Each unit operates with a system 30 timer to display any one of eight timing events or average goal percentages. R31s remote display the r31s has a 2¼ inch 5715 mm single sided. The zoom dashboard is configurable to best fit your stores specific needs. Maximum wire length from timer switch to all installed remote switches cannot exceed 300 ft 90 m.
Up to four remote display units can be connected to the system 30. User manuals for hme drive thru headset systems drive thru timer systems and other drive thru communication solutions. Hme wireless pagers for restaurants churches and hospitals. User manuals for hme drive thru headset systems drive thru timer systems and other drive thru communication solutions. The main features of the control unit are. Its the in store diagnostic tool that empowers managers to solve performance issues on the spot.
Wiring vizia matching remote switch wall box with line hot connection. Installation wiring diagrams english eoshd wireless drive thru headset system with hd audio installation wiring diagrams french. 8585520172 hme 400g640 rev a 9142009. Hm electronics inc 14110 stowe drive poway ca 92064 usa phone. Connect wires per wiring diagram as follows. End user license agreement eula for hme dashtm timer system d30 software important read carefully.
Zoom drive thru timer your store managers new best friend. Hme 400g485 rev e 12808 pc30a software version 30 for hme system 30 installation and operating instructions.















